Prototype 2
4 storeys / 4 units / 25’ lot
Typology
Four-Storey Apartment Building
	Four-Storey Apartment Building
Occupancy
Group C - 4 Dwelling Units
	Group C - 4 Dwelling Units
Classification
NBC 3.2.2.52
NBC 3.2.2.52
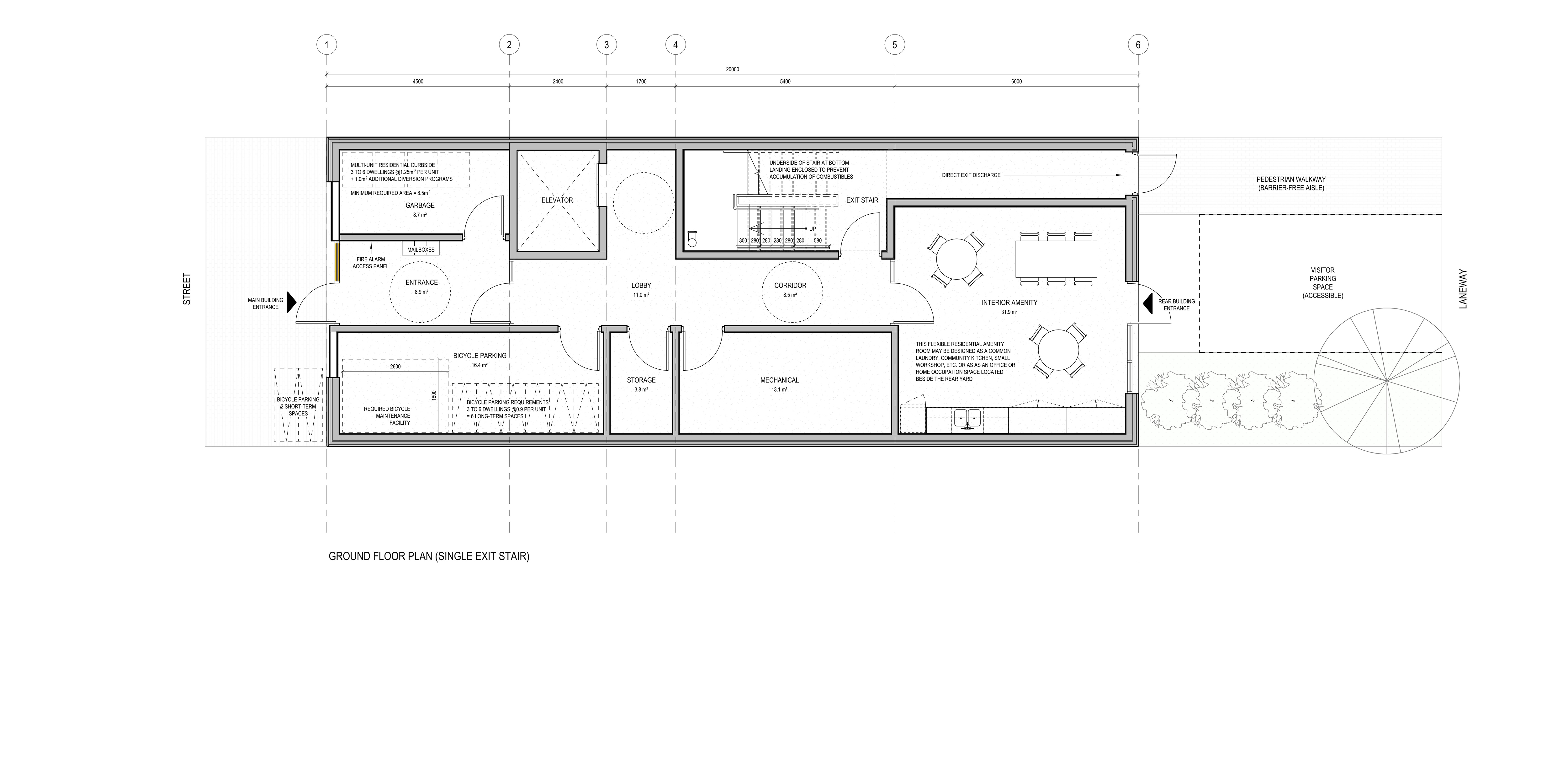
This scenario proposes a four-storey apartment building on a narrow 25’ (7.6m) lot width along a mixed-use street. This is a common dimension for properties along main streets in urban areas across Canada. The proposed single exit stair (SES) building design contains a 2-bedroom and 1-bedroom home on the second floor and a 3-bedroom on the third and fourth floors (total of 4 dwelling units) with a common amenity, garbage, bicycle, storage and mechanical room on the ground floor. This unit mix could be rearranged as 3 larger homes or up to 6 smaller homes.
Regardless of the unit mix, each storey fits no more than three bedrooms such that the SES serves a total of 18 occupants (calculated as 2 persons per bedroom), which is 30% of the 60 person occupant load permitted for floor areas served by a single exit in the National Building Code of Canada. Given this low occupant load, a minimum exit facility width of 1100mm is provided. The design provides a direct exit discharge on the ground floor to the rear lane and another path of travel through the residential lobby to the street, located within proximity of the fire access route.
Lot Size
25’ x 100’
Lot Area
232.3m2
(2,500 sq.ft.)
Lot Coverage
66%
Building Area
152.4m2
	
	
Building Height
4 storeys
Building Depth
20.0m
	
Gross Floor Area
585.3m2
Floor Space Index
2.52
Residential Unit Mix
4 dwelling units
(1x1-Bed, 1x2-Bed, 2x3-Bed)
	
Occupant Load (SES)
18 persons
Occupant Load (per storey)
6 persons
Exit Facility Width
1100mm
25’ x 100’
Lot Area
232.3m2
(2,500 sq.ft.)
Lot Coverage
66%
Building Area
152.4m2
Building Height
4 storeys
Building Depth
20.0m
Gross Floor Area
585.3m2
Floor Space Index
2.52
Residential Unit Mix
4 dwelling units
(1x1-Bed, 1x2-Bed, 2x3-Bed)
Occupant Load (SES)
18 persons
Occupant Load (per storey)
6 persons
Exit Facility Width
1100mm

Floor Area Efficiency
single stair = 82.2% (78.7%)*
scissor stair = 67.0%
+15.2%
* +11.7% if two smaller units per storey
Construction Cost (Direct Only)
single stair = $2,514,300 ($373/sf)
scissor stair = $2,570,700 ($379/sf)
-2.2% (-$56,400)
Net Operating Income (Rental)
single stair = $106,610 annualized
scissor stair = $100,910 annualized
+5.7% (+$5,700)
The floor plans below compare the single stair building design with an overlay of the prescriptive requirement for two exits. As a measure of leasable floor area, the single stair plan increases the efficiency of the typical floor plan by 15.2%, whereas the prescriptive design eliminates one of the bedrooms on each upper floor. The construction costing of the building (with no change in overall building size and accounting for the cost of additional fire and life safety measures) shows a difference attributed to the additional staircase, partitions and doors compared to fewer windows and a simplified building envelope. The impact of changing the design from a total of 9 bedrooms to 6 bedrooms is also captured in terms of rental income.

Appendix (Downloads)
SES Prototype 2 - Class D Construction Costing (2025.02.12)
SES Prototype 2 - Pro Forma Analysis (2025.03.10)
This website, including all data and information incorporated herein, is being provided for information purposes only. For certainty, the author provides no representation or warranty regarding any use of or reliance upon the content of this website, including no representation or warranty that any architectural drawings comply with applicable laws including any applicable building code requirements or municipal by-laws. Any use of or reliance upon the content of this website by any person for any purpose shall be at such person’s sole risk and the author shall have no liability or responsibility for any such use of or reliance upon the content of this website by any person for any purpose. Prior to any use of or reliance upon the content of this website by any person for any purpose, consultation with a professional architect duly licensed in the applicable jurisdiction is strongly recommended.
